产品中心

PRODUCT

产品中心

美式电缆分接箱

如果您有任何问题可以联系我们!
联系我们

电话:13772120800

扫一扫,加我为朋友
  • 详细信息
详细信息
美式电缆分支箱的产品概述

美式电缆分支箱是一种广泛应用于北美地区电力配网系统中的电缆化工程设备,它以单向开门、横向多通母排为主要特点,具有宽度小、组合灵活、全绝缘、全密封等显著优点。按照额定电流一般可以分为600A主回路和200A分支回路两种。600A主回路采用旋入式螺栓固定连接;200A分支回路采用拔插式连接,且可以带负荷拔插。美式电缆分支箱所采用的电缆接头符合IEEE 386标准。

美式电缆分支箱的使用环境

1、安装场所:户外
2、环境唯独:-25℃至+40℃
3、海拔:海拔高度不超过2000米
4、无腐蚀性气体;爆炸易燃的环境。

美式电缆分支箱的功能特点

◆ 全绝缘、全密封结构,无需绝缘距离,可靠保证人身安全。
◆ 防尘、抗洪水、耐腐蚀、免维护,既可用于户外,也可浸在水中,适用任何恶劣环境。
◆ 组合极为灵活,进出线分支可达八路,满足多种接线要求。
◆ 体积小、结构紧凑、安装简单、操作方便。
◆ 200A分支电缆接头可作为负荷开关,带负荷拔插,并具有隔离开关的特点。
◆ 可接短路故障指示器,便于迅速查找电缆故障。
◆ 有多种箱体材质可选择:普通钢配军品绿色、镜面不锈钢、不锈钢配军品绿色等。

美式电缆分支箱方案图

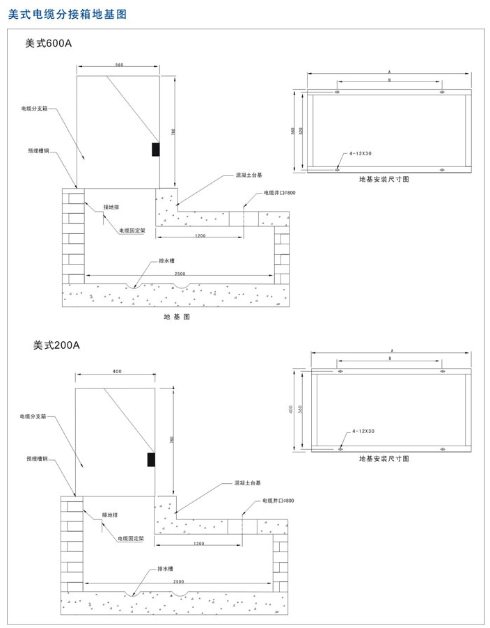
美式电缆分支箱的安装基础图

相关产品
联系我们
扫一扫,加我为朋友
© 西安宝光电力科技有限公司   陕ICP备2022009649号   XML   网站地图   网站制作维护:传信网络

在线
QQ

点击这里给我发消息 625887399
在线QQ

微信
咨询

扫一扫,加我为朋友
扫一扫,加我为朋友

服务
热线

13772120800
服务热线